Architecture Foundation Australia

Cobar Sound Chapel

Photo : Klae McGuiness

Cobar Sound Chapel is a sound art installation in desert country near the town of Cobar in central western New South Wales.

The ‘brain child’ of composer and musician Georges Lentz, it has been designed by Glenn Murcutt, with engineer Peter Thew and technical adviser Oliver Miller. George Lentz is a composer of contemporary music for string instruments that is technically reconfigured. It was the idea of Lentz In 2016, to insert a sound installation into a disused rusted steel water tank on the outskirts of Cobar.

The tank has an open top that is open to the sky. Lentz had composed music inspired by the land and sky of the outback and worked with the ‘Noise String Quartet’ to record, improvise and play the composition as a 24-hour-long track that now plays continuously in the Sound Chapel.

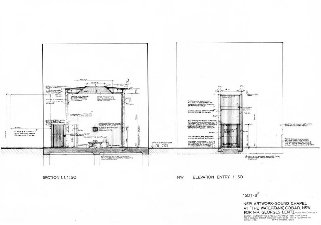
Murcutt and Lentz worked together to conceive an intervention in the round water tank. A  5 metre square concrete cube sits now in the centre of the water tank, with a conical dome, painted gold, the top open to the sky. The inside of the concrete walls of the cube are ‘off-form’ using traditional corrugated steel profile, which neutralises the potential echo in the confined space. The entrance to the tank and sound cube is formed by tall concrete blades that hold a gate that can only be opened by a key made available ‘on loan’ to visitors at the local town visitor information office, secured by ….?

Within the cube is a concrete ‘altar’ which houses the technical equipment and one ‘sub-woofer’, and four other speakers are located in recesses in the four concrete walls. There was great apprehension when the sound performance was first tested by Murcutt and Lentz, to much relief and great delight the instinctive strategies and technical research were found to work brilliantly. The emotional experience in listening to the music, particularly at night when the night sky can be viewed through the oculus in the roof, is extreme and beautiful.

A fine documentary has been made by Catherine Hunter and was broadcast on ABC National Television ‘Compass’ program. 

Client   

Cobar Shire Council

Design

Glenn Murcutt in collaboration with Georges Lentz 

Consultants

Contractor Cynend Building and Construction 
Cobar Shire Council, Lilliane Brady 
Technical consultant Oliver Miller
Landscaping Kangaroo Gardens 
Artist Sharron Ohlsen
Music The Noise String Quartet   

Photography

Anthony Browell (except as otherwise identified )

Built on the land of the Ngiyampaa Wangaaypuwan people

Cobar-1-copy.jpg
Cobar-2.jpg
Cobar-3.jpg
Cobar-4.jpg
Cobar-5.jpg
Cobar 6.jpeg
Cobar 7.jpeg
Cobar 8.jpeg
Cobar-9-DSC_7166-copy.jpg
 Photo : Lindsay Johnston

Photo : Lindsay Johnston